Neverjetno stanovanje v središču Zagreba: veliko je le 18,6 kvadrata (FOTO)

Sprva na videz nemogoča naloga: v 18,6 kvadratnega metra veliko stanovanje umestiti vse, kar je potrebno za življenje, ne da bi delovalo natrpano. A zagrebška notranja oblikovalka je dokazala, da je to z majhnimi kompromisi mogoče. Kako ji je uspelo?
Majhno stanovanje v središču Zagreba, veliko le 18,6 kvadratnega metra, je bilo ob začetku prenove v klavrnem stanju. Že leta v njem ni živel nihče. Po vrhu vsega pa je bilo še vlažno, prav sanacija vlage se je izkazala za najdražji del obnove.
A so bili lastniki pri obnovi realni in racionalni. Zavedali so se, da ne morejo imeti kuhinje s pralnim strojem in pečice, ampak bo moralo biti stanovanje bolj podobno kakšnemu dijaškemu domu. Ima namreč manjšo kopalnico, na preostalih devet kvadratnih metrov pa je bilo treba umestiti posteljo, omaro, mizo in štedilnik. Pri tem je bila ključna vertikalna dimenzija prostora. Zato so posteljo dvignili na višji nivo, spodaj pa postavili garderobno omaro oziroma prostor za shranjevanje, piše portal zadovoljna.dnevnik.hr.
Na fotografijah, narejenih pred obnovo, se vidi, da je stanovanje pripadalo nekemu drugemu času, pravi notranja oblikovalka Mirela Blažanović. Tudi leta neuporabe so naredila svoje. Blažanović svoje stranke pred obnovo stanovanja vedno prosi, naj naredijo seznam želja in jih razvrstijo po pomembnosti. Na ta način spozna njihove prioritete. Vedno se potrudi tudi, da vključi želje z dna seznama, saj te – čeprav morda za funkcioniranje stanovanja niso najpomembnejše – dajo prostoru osebnost.
Pri zagrebškem stanovanju je bila najpomembnejša naloga to, da lahko v stanovanju mlada oseba živi normalno. Stanovanje je moralo izpolnjevati vse stanovanjske in organizacijske potrebe. Upoštevati je bilo treba, da ima stanovalec veliko oblačil, obutve in kozmetike ter da mora biti prostor tudi za likalno desko, sesalnik in čistila.

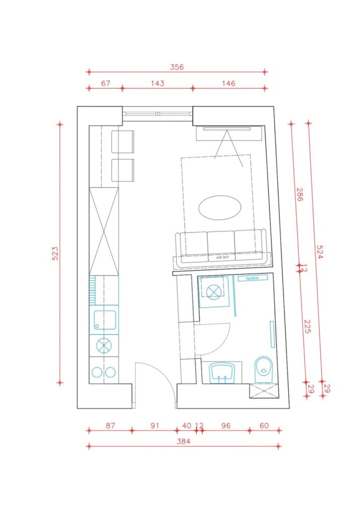
Zato je oblikovalka stanovanje razdelila na sedem funkcionalnih enot:
1. Vhod z omarami za čevlje in plašče.
2. Kopalnico, v katero je morala umestiti bojler, pralni in sušilni stroj, tuš kabino (ki si jo je zaželel naročnik), stranišče, umivalnik z ogledalom in prostor za shranjevanje čistil ter kozmetike. Pri tem si je želela, da bi bila kopalnica svetla in ne bi delovala utesnjeno. To je Blažanović dosegla z močno osvetlitvijo, ki deluje kot dnevna svetloba, in igro svetlih barv ter močnejših tonov.

3. Kuhinjo z vsemi ključnimi elementi. Čeprav je bilo mogoče pričakovati, da kuhinja ne bo tako pogosto v uporabi, kot bi bila v gospodinjstvu družine, mora vseeno imeti hladilnik, pomivalno korito, štedilnik, pečico, pomivalni stroj in veliko prostora za shranjevanje.
Delovno površino je oblikovala z globljimi zgornjimi kuhinjskimi elementi. Kuhinja je bele barve in nima detajlov. To je bila, tako Blažanović, želja naročnika, saj se je na ta način razbremenil že tako majhen prostor.

4. Dnevna soba ima udoben kavč, manjšo klubsko mizico in televizijo. Ker je v proračunu, namenjenem obnovi, zmanjkalo denarja, je oblikovalka omaro pod televizijo nadomestila s košarami. Da stanovanje ni preveč belo, je v dnevno sobo obesila plakate v intenzivnih barvah.
5. Za jedilnico v stanovanju ni bilo dovolj prostora. Kar je Blažanović rešila tako, da je mizo in stole postavila v ...

6. ... delovni kotiček. Izbrala je mizo na koleščkih, ki jo je enostavno mogoče potisniti na sredino prostora, da lahko za njo sedi več ljudi. V delovnem kotičku so še police in prostor za odlaganje knjig, kar je zelo pomembno za študente.
7. Študentsko stanovanje mora imeti pravo posteljo in ne le raztegljivega kavča. V tako majhen prostor pa enostavno ni bilo mogoče postaviti tako postelje kot kavča. Dilemo je oblikovalka rešila s posteljo, umeščeno v omaro, ki jo je mogoče spustiti. Na ta način se prihrani prostor. Udobje je enako kot na običajnih posteljah, slabost te rešitve pa je nekoliko večji začetni strošek.

Garderobne omare je oblikovalka povezala z ostalim pohištvom in tako ustvarila povezavo med kuhinjo, omarami in delovnim prostorom. Za vsako enoto tega velikega kosa pohištva se natančno ve, čemu je namenjena. Mirela Blažanović je celo na vsako polico napisala, čemu je namenjena.
Čeprav običajno ni ljubiteljica bele barve, se je tukaj izkazala za najboljšo rešitev. Tako namreč omara tvori nekakšno drugo steno: ravno, gladko in brez večjih odstopanj.

Da je vizualno povečala prostor, je notranja oblikovalka uporabila več trikov. Poleg bele barve in svetlih tonov je zelo pomembna tudi osvetlitev. Bolj kot je stanovanje svetlo, večje se zdi.
Ravne linije, ravno prav veliki kosi pohištva, odmaknjenost prostostoječih kosov od stene in usklajenost tekstur. Ključna pa je tudi urejenost tako majhnega prostora. Vse mora imeti svoje mesto. To je bil po besedah Blažanović najzahtevnejši del projekta. Da bi izkoristili vsak kotiček garsonjere in ga naredili kar najbolj funkcionalnega, je bilo treba prisluhniti željam naročnika ter uporabiti vse izkušnje.

Mirela Blažanović je pojasnila, da imajo ljudje pogosto zelo nerealne zahteve, a omejitve ob primerni razlagi sprejmejo. Oblikovalci zmorejo veliko, a niso vsemogočni. 20 kvadratnih metrov ni mogoče podvojiti, ne glede na izkušenost oblikovalca, arhitekturne trike in orodja. S portalom zadovoljna.dnevnik.hr je delila tri najpomembnejše nasvete za opremljanje majhnega stanovanja:
- znižajte pričakovanja,
- imejte samo stvari, ki jih potrebujete,
- posvetujte se s strokovnjakom.
Pomislili bi, da je 18,6 kvadratnega metra veliko stanovanje, najmanjše izmed enot, ki jih je doslej uredila notranja oblikovalka Mirela Blažanović. A so bila tudi manjša. Tako je na primer uredila tudi stanovanje v nekdanjem domu za upokojence, ki so ga preuredili v majhna stanovanja. Tamkajšnje stanovanje je bilo veliko le 12 kvadratnih metrov.
Kakšno je tvoje mnenje o tem?
Sodeluj v razpravi ali preberi komentarje