
Arhitekta sta enonadstropno počitniško hišo v Srbiji spremenila v sodobno gorsko oazo.
Oglaševanje
Studio za arhitekturno projektiranje in 3D vizualizacijo Qubicul design iz Bosne in Hercegovine je izdelal zanimiv projekt propadajoče hiše na Avali, hribu pri Beogradu.
Arhitekta Haris Delić in Lamija Radončić sta enonadstropno počitniško hišo spremenila v sodobno gorsko oazo. "Našla sva objekt, ki je že imel dokončano osnovno konstrukcijo in delno fasado, a je bil nefunkcionalen in je imel starinsko zasnovo. Investitor je želel zunanjo podobo objekta posodobiti," razkrivata arhitekta. S posegi v obliko objekta so se spremenili dimenzije in položaji fasadnih odprtin. Spremenjena je bila tudi lega terase v prvem nadstropju, medtem ko zunanji zidovi in zunanje dimenzije objekta niso bili spremenjeni, piše Nova.rs.
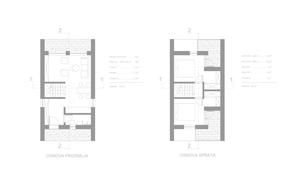
"Streho sva spremenila tako, da sva vgradila skrite žlebove, kar se je odrazilo na končni podobi," pravita arhitekta. V pritličju je vhod s hodnikom, ki vodi do stranišča, kuhinje, jedilnice in dnevne sobe. V prvem nadstropju sta dve spalnici z manjšo garderobo in pokritimi terasami, še piše Nova.rs.

Projekt počitniške hiše na Avali kaže, kako lahko rekonstrukcija, ne glede na slog gradnje, vedno naredi čudeže, še piše Nova.rs. Arhitekta lastnikom poudarjata, naj se pred obnovo vedno posvetujejo s strokovnjaki.
"Objekti se najpogosteje dograjujejo z novimi prostori in se uporabljajo modernejši materiali. Zaradi zniževanja stroškov se na stare postavljajo nove obloge, spreminja se namembnost prostora, vse to pa dodatno obremenjuje konstrukcijske elemente, ki verjetno niso bili preračunani in namenjeni novostim, zato vedno poiščite strokovni nasvet," še dodajajta arhitekta.

Kakšno je tvoje mnenje o tem?
Sodeluj v razpravi ali preberi komentarje
Oglaševanje
Kakšno je tvoje mnenje o tem?
Sodeluj v razpravi ali preberi komentarje
Oglaševanje