Katere hiške na Cresu bodo dražili to sredo

V sredo ob 13. uri se bo začel nov krog dražb počitniških hiš propadlega gradbenega podjetja Primorje, d. d., na Cresu. Tri hiške imajo izhodiščno ceno 63.734 evrov, preostali dve 77.816 evrov.
Oglaševanje
Preteklo sredo se je odvila prva dražba petih hišk v naselju Stara Gavza na Cresu, ki so v lasti propadlega ajdovskega gradbenega podjetja Primorje, d. d. Končni izkupiček je znašal neverjetnih 1,249 milijona evrov. Največ interesa je požela hiška ob robu naselja v velikosti 40,25 kvadratnega metra. Njena izklicna cena je bila 77.816 evrov, na koncu pa so jo prodali za kar 360 tisoč evrov, kar znese skoraj devet tisoč evrov na kvadratni meter. Hrvaški nepremičninar Krunoslav Zmajla nam je dejal, da česa takšnega še v življenju ni videl.
To sredo se bo odvila druga od napovedanih sedmih spletnih dražb počitniških hiš.
Katere hiške bodo dražili tokrat
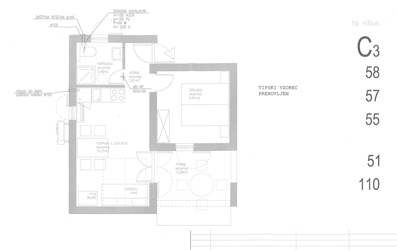
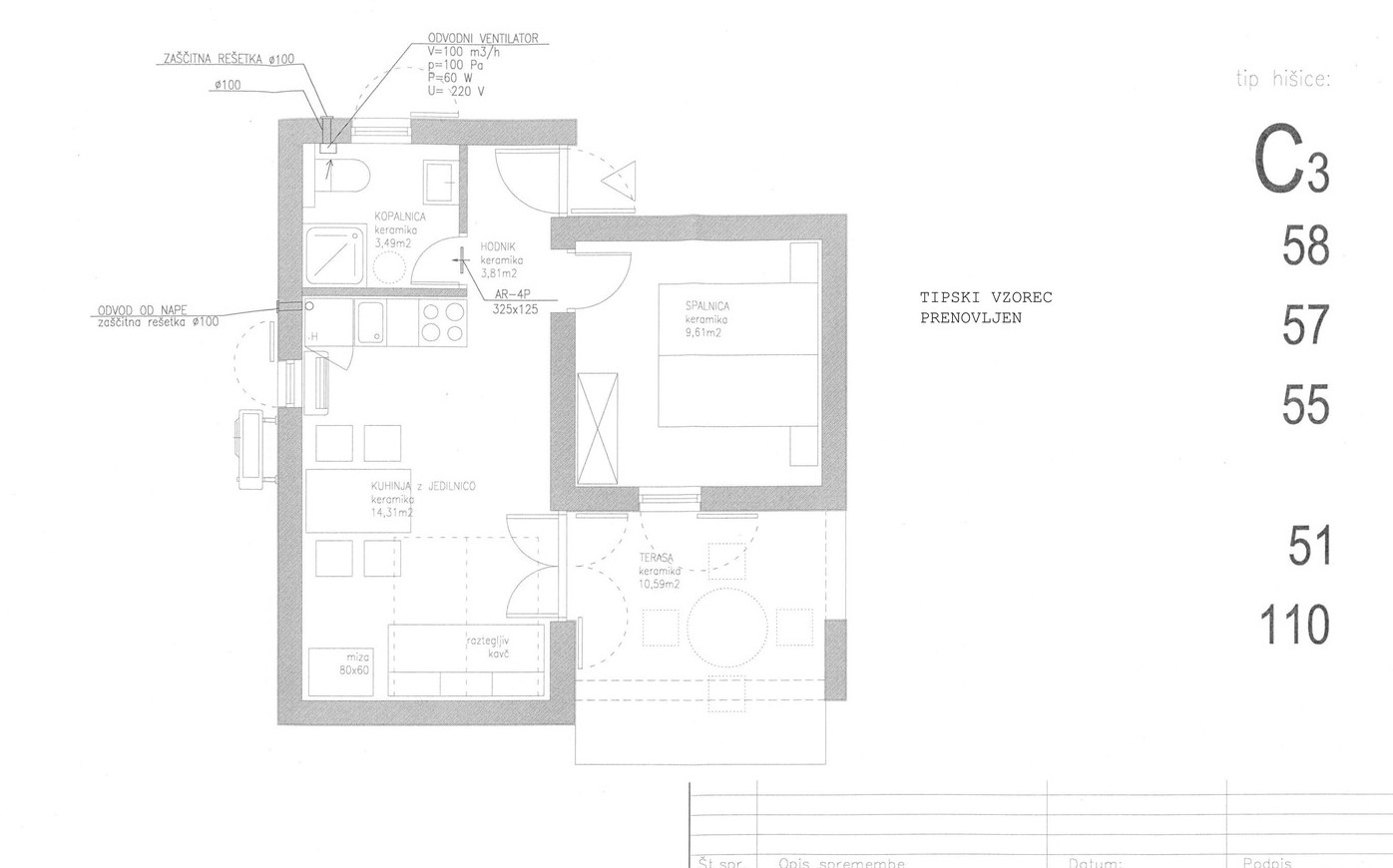
Počitniška hišica številka 51 (del trojčka)
Kvadratura hišice: 40,25 m²
Kvadratura zemljišča: 50 m²
Izklicna cena: 77.816 evrov

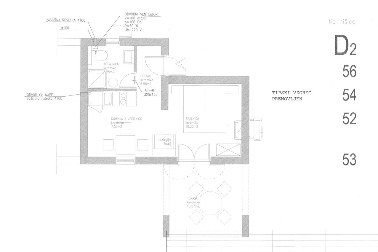
Počitniška hišica številka 52 (del trojčka)
Kvadratura hišice: 32,9 m²
Kvadratura zemljišča: 45 m²
Izklicna cena: 63.734 evrov

Počitniška hišica številka 53 (del trojčka)
Kvadratura hišice: 32,9 m²
Kvadratura zemljišča: 45 m²
Izklicna cena: 63.734 evrov

Počitniška hišica številka 54 (del dvojčka)
Kvadratura hišice: 32,9 m²
Kvadratura zemljišča: 45 m²
Izklicna cena: 63.734 evrov

Počitniška hišica številka 55 (del dvojčka)
Kvadratura hišice: 40,25 m²
Kvadratura zemljišča: 50 m²
Izklicna cena: 77.816 evrov

Več fotografij hišk, ki jih bodo na dražbi prodajali to sredo:
Primorje, d.d. | Primorje, d.d.
Več
Primorje, d.d. | Primorje, d.d.
Več
Primorje, d.d. | Primorje, d.d.
Več
Primorje, d.d. | Primorje, d.d.
Več
Primorje, d.d. | Primorje, d. d.
Več
Primorje, d.d. | Primorje, d.d.
Več
Primorje, d.d. | Primorje, d.d.
Več
Primorje, d.d. | Primorje, d.d.
Več
Primorje, d.d. | Primorje, d.d.
Več
Primorje, d.d. | Primorje, d.d.
Več
Primorje, d.d. | Primorje, d.d.
Več
Primorje, d.d. | Primorje, d. d.
Več
Primorje, d.d. | Primorje, d.d.
Več
Primorje, d.d. | Primorje, d.d.
Več
Primorje, d.d. | Primorje, d.d.
Več
Primorje, d.d. | Primorje, d.d.
Več
Primorje, d.d. | Primorje, d.d.
Več
Primorje, d.d. | Primorje, d.d.
Več
Primorje, d.d. | Primorje, d.d.
Več
Primorje, d.d. | Primorje, d.d.
Več
Primorje, d.d. | Primorje, d.d.
Več
Primorje, d.d. | Primorje, d.d.
Več
Primorje, d.d. | Primorje, d.d.
Več
Primorje, d.d. | Primorje, d.d.
Več
Primorje, d.d. | Primorje, d.d.
Več
Primorje, d.d. | Primorje, d. d.
Več
Primorje, d.d. | Primorje, d.d.
Več
Primorje, d.d. | Primorje, d.d.
Več
Primorje, d.d. | Primorje, d.d.
Več
Primorje, d.d. | Primorje, d.d.
Več
Primorje, d.d. | Primorje, d. d.
Več
Primorje, d.d. | Primorje, d.d.
Več
Prva dražba preteklo sredo je požela veliko zanimanja, javnost se je spraševala, kdo je pripravljen za počitniško hiško odšteti več kot četrt milijona evrov. V oddaji N1 STUDIO je Jure Ugovšek, novinar in urednik izdaje Najbogatejši Slovenci, pojasnil, da je kupce hišk težko izslediti, saj javnosti podrobnosti niso znane. Tisti, ki so spremljali dogajanje, pa so dejali, da velikih poznavalcev prekaljenih nepremičninskih mačkov na dražbi in na lokaciji ni bilo.
Strokovnjakinja za osebne finance in avtorica podkasta Money-How Marja Milič je na drugi strani ocenila, da je kupec tovrstne nepremičnine in za takšno ceno nekdo, ki ima čustveno navezo na Cres.
video-cdn src="https://best-vod.umn.cdn.united.cloud/stream?asset=ljdrazbepravaweb-n1info-si-worldwide&stream=hp1400&t=0&player=m3u8v&sp=n1info&u=n1info&p=n1Sh4redSecre7iNf0" video-id="3909546"]
Po sredi se bo zvrstilo še pet drugih dražb, in sicer vsak teden ob sredah. Zadnja se bo odvila 19. januarja 2022. Dražba počitniških hiš je bila pred tem že dvakrat prestavljena. Spomnimo, da bi morala steči že jeseni 2020, a je bila zaradi razmer med epidemijo covida-19 prestavljena. Stečajni upravitelj Primorja Rudolf Hramec je pričakoval, da se bo dražbeni postopek začel letošnjo pomlad, a se tudi to ni zgodilo. Slovenija je bila namreč spomladi še vedno globoko v primežu tretjega vala epidemije, zato so dražbo prestavili.
Hišice v naselju Stara Gavza, ki je od mesta Cres oddaljeno slaba dva kilometra, skupaj merijo 1.622 kvadratnih metrov, zgrajene pa so bile med letoma 1978 in 1981. Leta 2007 je bilo deset hiš obnovljenih. Stečajni upravitelj likvidacijsko vrednost počitniškega naselja ocenjuje na dobre tri milijone evrov, njegova tržna vrednost naj bi bila ocenjena še za en milijon več.
Kakšno je tvoje mnenje o tem?
Sodeluj v razpravi ali preberi komentarje
Oglaševanje
Kakšno je tvoje mnenje o tem?
Sodeluj v razpravi ali preberi komentarje
Oglaševanje